1801 W St Johns Ave
1801 W St Johns Ave
SEE ALL PHOTOS
1801 W St Johns Ave
1801 W St Johns Ave
Active Under Contract

1801 W St Johns Ave

1801 W St Johns Ave, Austin, TX 78757

$575,000
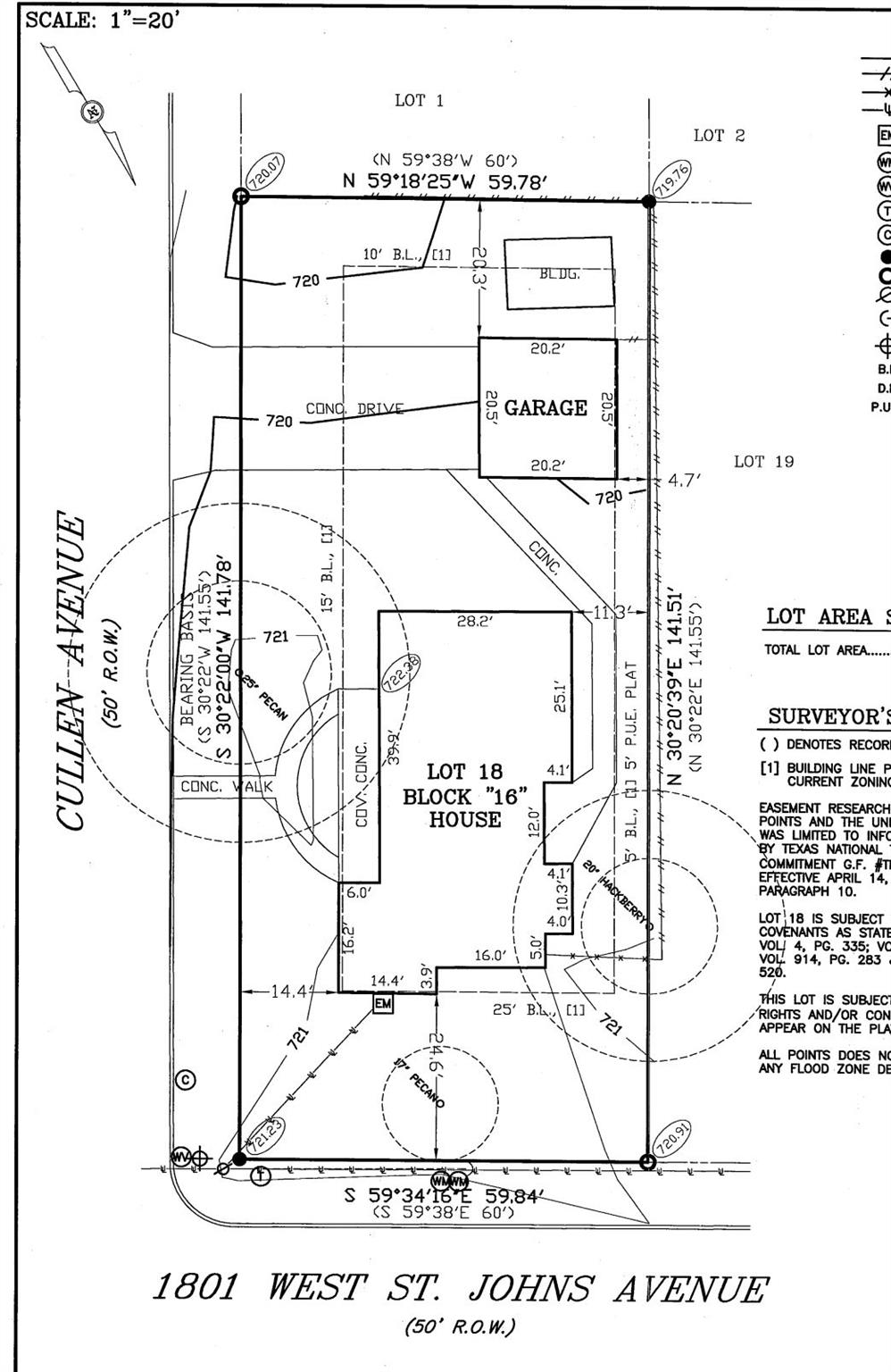
Premium cleared, corner lot in Crestview is ready for development! This lot can accommodate a single family home or up to three units!
Survey and soil report available. Tap plan approved for single family home. Single family home plans available to convey. Survey is from before previous structure was removed.
Buyer's must do their own due diligence!

8,337.38 Sq.Ft. lot

Nate Carty

Nate Carty

Features & Amenities

Area & Lot

  • Status Active Under Contract
  • Lot Area8,337.38 Sq.Ft.
  • MLS® ID3100551
  • TypeLand
  • Water FrontageNone
  • View DescriptionNone
  • Elementary SchoolBrentwood
  • Middle SchoolLamar (Austin ISD)
  • High SchoolMcCallum
  • School DistrictAustin ISD

Exterior

  • water SourcePublic
  • utilitiesAbove Ground, Cable Available, Electricity Available, Natural Gas Available, Sewer Available, Water Available
  • lot featuresCleared, Corner Lot
  • sewerPublic Sewer

Financial

  • Sales Price$575,000
  • Real Estate Tax $9,265/yr

Work With Nate

Attention to detail and quality in all aspects of a transaction are essential. Developed expertise in construction that he uses to help clients.